北京写字楼网,专注于北京商业地产(写字楼、商务楼)代理服务的品牌经纪机构!
写字楼租赁热线:400-678-3338 | 加入收藏 | 设为首页 
 
 
 

长安街沿线,精装办公室出租,高端楼宇,高端办公室,随时入职

28.6万元/月  15元/天/㎡

建筑面积

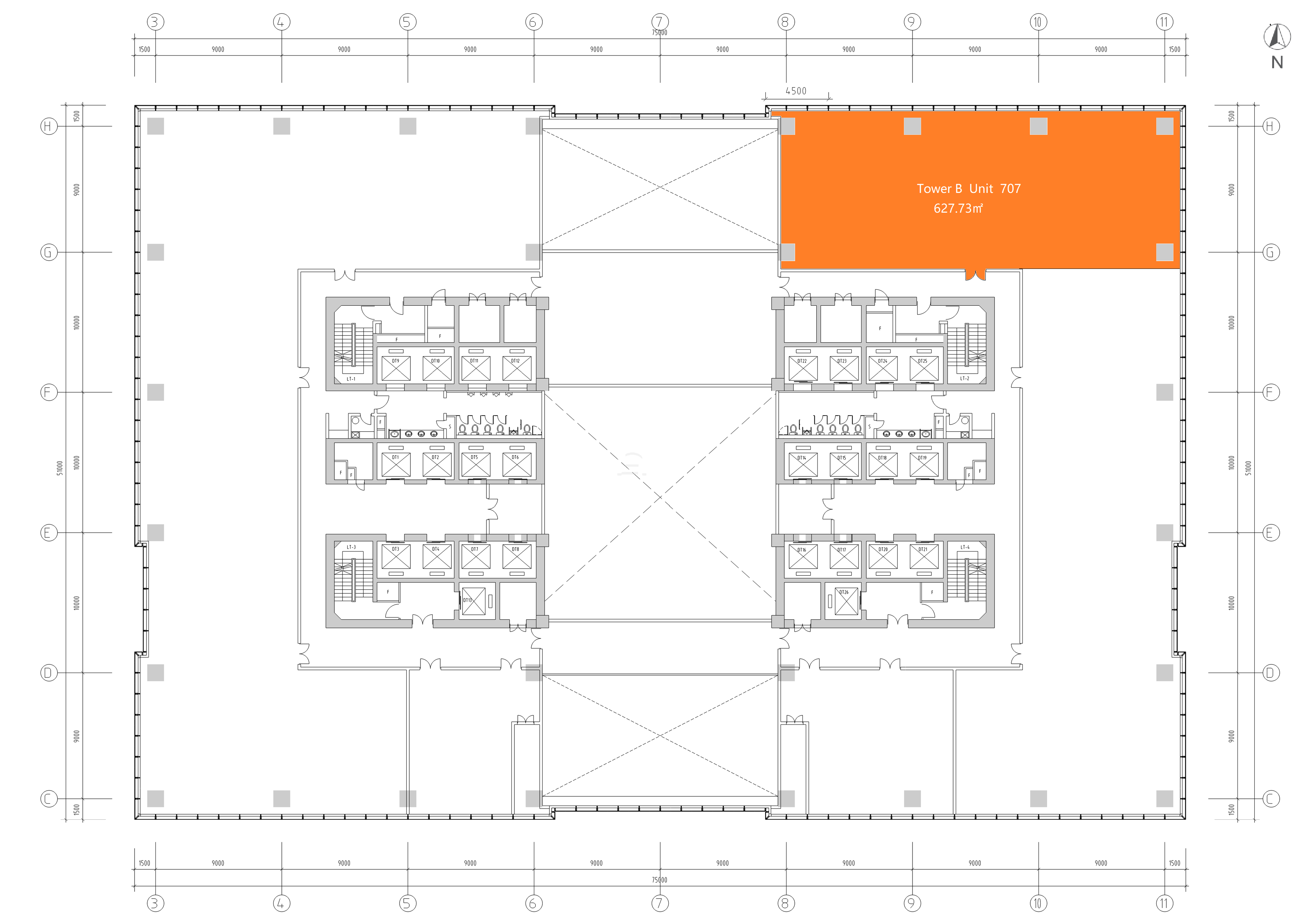
627平米
  所在楼层

7层

区域/地铁: 朝阳 / 1号线
详细地址: 北京市朝阳区建国门外大街8号
所属楼盘: 北京国际财源中心
装修情况: 精装修
为了更好的提供服务,请随时致电金牌经纪人!

13610835507(颜硕)

基础信息
日 租 金 : 15元/天/㎡ 建筑面积: 627平米
月 租 金 : 28.6万元/月 类  型: 办公
付款方式: 押三付三 楼  层: 7层
工 位 数 : 60 装  修: 精装修
所属楼盘: 北京国际财源中心 注  册:
详细地址: 北京市朝阳区建国门外大街8号 分  割: 暂无数据
房源总览

项目位于北京CBD核心区核心,挟长安街与国贸中心南北相望,势将成为继国际贸易中心之后,具有地标性质的顶级商务写字楼建筑集群;项目的出现,必将重构北京CBD中央商务区核心金三角钻石之遇新格局,开创有限联赢,无限商务新理念,是北京目前屈指可数的航母级大盘商务写字楼建筑集群;从简捷的立方体造型到玻璃幕,钢构等现代材料的应用;从功能化,人文化的空间规划,到同步国际商务办公标准的配套完善,将以不争的事实,成为未来北京CBD的抗鼎巨作。
项目规划用地20325平方米,建筑面积239,603平方米,标准层面积1600平米,其中写字楼建筑面积约90,000平方米,地上36层(部分19层),地下5层。项目由4栋超5A智能商务写字楼挽手构成,其中东塔主体为“钢混”结构;西塔为“全钢+钢混核心筒”结构;配以完美商业及服务设施,是集银行、商务会议、俱乐部、高档休闲、餐饮、购物于一体的综合建筑体,形同巨人崛起。项目2007年年底前交付使用。东塔(A、B)座建筑面积:93,218 平方米,西塔(A、B)座建筑面积:146,385 平方米,建筑高度:西塔(A、B座)152.95 米,东塔(A、B座)87.95米。
项目由天润置地集团投资,北京建机天润房地产开发有限公司开发建设。地处东长安街与北京CBD交汇点上,高151.2米,通体采用黑与白两种极致色彩搭配,使项目整体在视觉上产生鲜明的震撼之感。用实力打造品质,用色彩勾画建筑,北京IFC为世界级企业构筑最具影响力的商务平台。
项目北临百年长安大道、扼守CBD商务轴心、东西两侧聚集国贸中心、赛特中心两大繁华商业圈,商务及商业氛围优越。由东三环主干道与数十条公交线路、地铁1号线、10号线围合成的多维立体交通体系随时提供高速、畅捷的出行选择。
项目办公区域采用无柱式的空间设计,长9米的柱距间隔与最长12米的进深布局,能够让客户自由划分办公格局。灵活的空间分割使办公区域多面采光,保证办公空间的舒适性。并且中低办公区域每两层拥有一处挑空约8米,面积达300平米的双层挑空中庭区域,敞亮开阔的中庭区域不仅赋予空间个性化的分割布局,更架连起办公区域之间独有的商务环境。
项目首层大堂近千平米,挑高16米,南北通透宽敞,释放广阔建筑尺度。四周分布银行、证券交易所及咖啡厅等配套商业,为国际商务往来人士提供便捷、周详的服务。大堂在装饰设计上以顶级米黄色大理石材配以金属装饰,隽永商务空间尽显高雅气度。 项目临近国贸大厦、 银泰中心、CCTV,与地铁1号线永安里站相连。
该建筑有东、西两座塔楼,外观设计简洁现代,内部空间宽敞舒适,是该地段的顶级写字楼之一,周边有多家五星级酒店和顶级购物中心。

附近地铁站:
距离地铁1号线永安里站236米
附近公交站:
cbd国贸站公交站237米途经公交车:北京夜景观光东线
恒惠路公交站314米途经公交车:快速直达专线100路 快速直达专线162路 快速直达专线5路
永安里路口西公交站411米途经公交车:1路 9路 43路 58路 120路 126路 619路 668路 000京东运乔建材城快车 夜1路 夜24路
大北窑西公交站516米途经公交车:1路 9路 28路 58路 619路 668路 804路 000京东运乔建材城快车 快速直达专线162路 快速直达专线169路 快速直达专线5路 夜1路
永安里路口北公交站526米途经公交车:28路 43路 120路 126路 403路 639路 夜24路
北京制药厂公交站655米途经公交车:639路
大北窑南公交站762米途经公交车:28路 57路 72路 91路 98路 113路 348路 402路 421路 669路 669路快车 805路快车 806路 807大方居通勤班车 807路 808路 809路 814路 818路 818路快车 846路 848路 938快 976路 高铁专线1路 京津新城商务班车 快速直达专线100路 快速直达专线143路 快速直达专线146路 快速直达专线162路 快速直达专线34路 快速直达专线5路 快速直达专线74路 快速直达专线79路 特8路内环 特8路外环 夜30路内环 夜30路外环 运通107线 专10路 专164路 专5路
日坛公园公交站1.1公里途经公交车:639路
国贸公交站721米途经公交车:机场大巴方庄线
日坛路公交站868米途经公交车:1路 9路 43路 58路 120路 126路 403路 639路 804路 000京东运乔建材城快车 夜1路 夜24路

楼盘简介

项目位于北京CBD核心区核心,挟长安街与国贸中心南北相望,势将成为继国际贸易中心之后,具有地标性质的顶级商务写字楼建筑集群;项目的出现,必将重构北京CBD中央商务区核心金三角钻石之遇新格局,开创有限联赢,无限商务新理念,是北京目前屈指可数的航母级大盘商务写字楼建筑集群;从简捷的立方体造型到玻璃幕,钢构等现代材料的应用;从功能化,人文化的空间规划,到同步国际商务办公标准的配套完善,将以不争的事实,成为未来北京CBD的抗鼎巨作。
项目规划用地20325平方米,建筑面积239,603平方米,标准层面积1600平米,其中写字楼建筑面积约90,000平方米,地上36层(部分19层),地下5层。项目由4栋超5A智能商务写字楼挽手构成,其中东塔主体为“钢混”结构;西塔为“全钢+钢混核心筒”结构;配以完美商业及服务设施,是集银行、商务会议、俱乐部、高档休闲、餐饮、购物于一体的综合建筑体,形同巨人崛起。项目2007年年底前交付使用。东塔(A、B)座建筑面积:93,218 平方米,西塔(A、B)座建筑面积:146,385 平方米,建筑高度:西塔(A、B座)152.95 米,东塔(A、B座)87.95米。
项目由天润置地集团投资,北京建机天润房地产开发有限公司开发建设。地处东长安街与北京CBD交汇点上,高151.2米,通体采用黑与白两种极致色彩搭配,使项目整体在视觉上产生鲜明的震撼之感。用实力打造品质,用色彩勾画建筑,北京IFC为世界级企业构筑最具影响力的商务平台。
项目北临百年长安大道、扼守CBD商务轴心、东西两侧聚集国贸中心、赛特中心两大繁华商业圈,商务及商业氛围优越。由东三环主干道与数十条公交线路、地铁1号线、10号线围合成的多维立体交通体系随时提供高速、畅捷的出行选择。
项目办公区域采用无柱式的空间设计,长9米的柱距间隔与最长12米的进深布局,能够让客户自由划分办公格局。灵活的空间分割使办公区域多面采光,保证办公空间的舒适性。并且中低办公区域每两层拥有一处挑空约8米,面积达300平米的双层挑空中庭区域,敞亮开阔的中庭区域不仅赋予空间个性化的分割布局,更架连起办公区域之间独有的商务环境。
项目首层大堂近千平米,挑高16米,南北通透宽敞,释放广阔建筑尺度。四周分布银行、证券交易所及咖啡厅等配套商业,为国际商务往来人士提供便捷、周详的服务。大堂在装饰设计上以顶级米黄色大理石材配以金属装饰,隽永商务空间尽显高雅气度。 项目临近国贸大厦、 银泰中心、CCTV,与地铁1号线永安里站相连。
该建筑有东、西两座塔楼,外观设计简洁现代,内部空间宽敞舒适,是该地段的顶级写字楼之一,周边有多家五星级酒店和顶级购物中心。

附近地铁站:
距离地铁1号线永安里站236米
附近公交站:
cbd国贸站公交站237米途经公交车:北京夜景观光东线
恒惠路公交站314米途经公交车:快速直达专线100路 快速直达专线162路 快速直达专线5路
永安里路口西公交站411米途经公交车:1路 9路 43路 58路 120路 126路 619路 668路 000京东运乔建材城快车 夜1路 夜24路
大北窑西公交站516米途经公交车:1路 9路 28路 58路 619路 668路 804路 000京东运乔建材城快车 快速直达专线162路 快速直达专线169路 快速直达专线5路 夜1路
永安里路口北公交站526米途经公交车:28路 43路 120路 126路 403路 639路 夜24路
北京制药厂公交站655米途经公交车:639路
大北窑南公交站762米途经公交车:28路 57路 72路 91路 98路 113路 348路 402路 421路 669路 669路快车 805路快车 806路 807大方居通勤班车 807路 808路 809路 814路 818路 818路快车 846路 848路 938快 976路 高铁专线1路 京津新城商务班车 快速直达专线100路 快速直达专线143路 快速直达专线146路 快速直达专线162路 快速直达专线34路 快速直达专线5路 快速直达专线74路 快速直达专线79路 特8路内环 特8路外环 夜30路内环 夜30路外环 运通107线 专10路 专164路 专5路
日坛公园公交站1.1公里途经公交车:639路
国贸公交站721米途经公交车:机场大巴方庄线
日坛路公交站868米途经公交车:1路 9路 43路 58路 120路 126路 403路 639路 804路 000京东运乔建材城快车 夜1路 夜24路

交通地图
 

官方咨询热线
400-678-3338 / 010-57497777
 


网站首页 | 公司简介 | 企业文化 | 爱心公益 | 常见问题 | 宏达大家庭 | 诚聘精英 | 房产资讯
 
| 关于宏达 | 客户服务 | 业主服务 | 房源出售 | 房源出租 | 网站首页


北京写字楼网 www.bjxzl.com.cn 备案号:京ICP备14025491号-1 Copyright © 2007-2021 , All Rights Reserve 网站建设:搜扑互联